PELLENBERG - Exculsief bouwperceel op 25a68ca - OB
Vraagprijs : € 540 000
Immo3000 heeft een bouwperceel te koop met een mooie opportuniteit voor wie op zoek is naar een ruim en rustig gelegen perceel in landelijk gebied. Droom je om te wonen op een toplocatie, midden in het groen maar vlak bij Leuven?
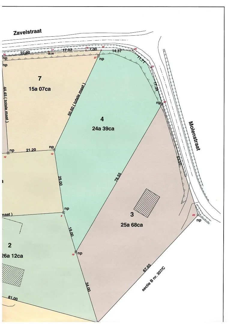
Ontdek dit prachtig gelegen grondperceel (lot 3) van 2.568 m² in de rustige Molenstraat te Pellenberg. Breedte aan de straatzijde = 53,50 m, perceeldiepte = gem. 70 m.
Het perceel is geschikt voor op het oprichten van een nieuwbouw in open bebouwing (afbraak bestaande constructies) of een totale renovatie van de bestaande constructie.
Binnen de voorziene bouwzone is een open bebouwing mogelijk met maximum 2 bewoonbare niveaus. De hoogte tussen het normale grondpeil en de kroonlijst is min. 3 m en max. 6m, constructie te voorzien van een zadeldak en een max. bouwdiepte van 15m.
✅ Open bebouwing volgens stedenbouwkundige voorschriften en voorschriften Agentschap Natuur en Bos.
✅ Straatbreedte 53,50 m – diepte gemiddeld 70 m
👉 Grijp deze unieke kans – contacteer ons voor meer info of een bezoek!
016 60 3000 of info@immo3000.be
Algemeen
| Adres: | Molenstraat 75 Pellenberg |
| Referentie: | 2026_PEL028 |
| Prijs: | € 540.000 |
| Type: | Grond |
| Beschikbaar vanaf: | Bij akte |
| Perceeloppervlakte: | 2.568 m² |
| Perceelbreedte: | 53,5 m |
| Perceeldiepte: | 73 m |
| Type constructie: | Traditioneel |
| Bouwjaar: | 1972 |
| Algemene staat: | Te slopen |
Wettelijke gegevens
| Geïndexeerd K.I.: | € 2.292 |
| Niet geïndexeerd K.I.: | € 1.021 |
| Kadastrale benaming: | Lubbeek 3 Afd Pellenberg |
| Kadastrale Nummers: | 0310/00K000 |
| Kadastrale Oppervlakte: | 2.568 m² |
| EPC Certificaat Nr.: | 20260115-0003776508-RES-1 |
| Totaal verbruik: | 720,00 kWh/(m² jaar) |
| EnergyClass: | F |
| Renovatieplicht: | Ja |
| Stedenbouwkundige vergunning: | Ja |
| Voorkooprecht: | Neen |
| Verkavelingsvergunning van toepassing: | Ja |
| Stedenbouwkundige bestemming: | Agrarisch gebied |
| Dagvaarding en herstelvordering: | Geen rechterlijke herstelmaatregel of bestuurlijke maatregel opgelegd |
| Overstromingsgevoelig: | Geen overstromingsgevoelig gebied |
| Overstromingsgebied: | Niet meegedeeld |
| Overstromingskans perceel (P-score): | C |
| Overstromingskans gebouw (G-score): | A |
| Erfgoed: | Geen beschermd erfgoed |
| Deze eigendom kan onderhevig zijn aan de renovatieverplichting die door de Vlaamse overheid wordt opgelegd voor residentiële gebouwen. Consulteer voor meer informatie de website van het Vlaams Energie- en Klimaatagentschap via https://www.vlaanderen.be/een-woning-kopen/renovatieverplichting-voor-residentiele-gebouwen | |