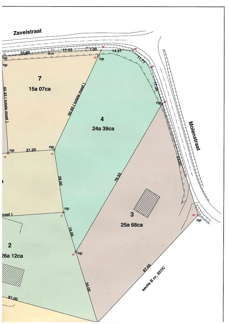
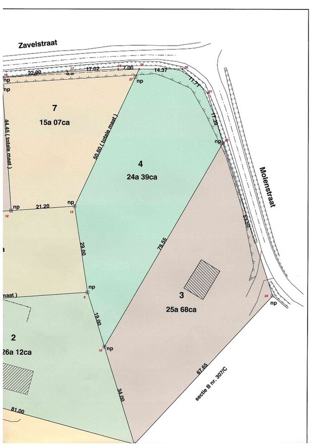
Immo3000 heeft een super goed gelegen bouwgrond te koop in de Molenstraat te Pellenberg. Het bouwlot bedraagt 2.568 m2 en biedt de kans voor het bouwen van een grote open bebouwing van meer dan 200 m² bewoonbaar. De indicatieve ontwerptekeningen geven een goed beeld van een knappe te bouwen nieuwbouw woning op het perceel.

De locatie van dit bouwlot is uniek. Naast de rustige ligging en het magnifieke uitzicht vooraan is het perceel gelegen in de nabijheid van alle faciliteiten zoals scholen, bakkers, winkels, ontspanning etc. Het centrum van Leuven en het Gouden Kruispunt zijn vlot bereikbaar. Maar toch woont en leeft u in het groen.

Deze grond kan aangekocht worden als perceel op zich of als sleutel op de deur in samenwerking met één van onze betrouwbare partners.

Wat hebben we te bieden?
Het voorstel betreft hier een woning van 8m op 12,5m met een bewoonbare oppervlakte van 200m² + de mogelijkheid om de zolder ook af te werken (extra van ongeveer een 75m², de zolder is volledig geïsoleerd maar nog niet afgewerkt).

U hebt een keuze uit een reeks van kwaliteitsvolle materialen waaronder een 30tal gevelstenen en vloeren , driedubbelglas met standaard 20 kleuren voor de buitenkant van de raamprofielen, 10 zonnepanelen, warmtepomp DAIKIN (lucht/water) met vloerverwarming, een keuken ter waarde van € 20.000,00 (een badkamer met bad en inloopdouche, met dubbele lavabo met kolomkast en spiegel en 2 hangtoiletten waarvan één met een handwasser).
Het dak wordt uitgerust met 10 zonnepanelen (4000 Wp).

Deze nieuwbouw kan zowel ruwbouw winddicht aangekocht worden als volledig afgewerkt.

Voor de instapklare versie betaal u € 881.500,00 (excl BTW, registratie, notaris, ... ):
- Constructie = €341.500,00 excl. BTW 6% (excl architect, EPB, veiligheidcoördinatie, riolering, ...)
- Grond = €540.000,00 excl. registratie en notaris

Het voorbeeldplan is informatief en aanpasbaar, zowel kleiner als groter bouwen is hier nog mogelijk.
De afbraak van de bestaande woning is niet verrekend.

Benieuwd hoe u de woning van uw dromen op deze knappe locatie kan realiseren?

Bel 016/603000 en wij geven graag toelichting op ons kantoor bij de mogelijkheden van dit project.

Perceelopp.
2 568 m²

Algemeen

Adres:Molenstraat 75
Pellenberg
Referentie:2026_PEL028_huis
Prijs:€ 881.500
Type:Grond
Beschikbaar vanaf:Bij akte
Perceeloppervlakte:2.568 m²
Perceelbreedte:53,5 m
Perceeldiepte:73 m
Type constructie:Traditioneel
Bouwjaar:2026

Comfort

Raamwerk:PVC
Dak:Zadeldak
Gevel:Baksteen
Beglazing:Dubbel
Verwarming:Warmtepomp
Verwarmd water:Warmtepomp
Isolatie:Dakisolatie, Muurisolatie, Vloerisolatie

Wettelijke gegevens

Niet geïndexeerd K.I.:€ 1.021
Kadastrale benaming:Lubbeek 3 Afd Pellenberg
Kadastrale Nummers:0310/00K000
Kadastrale Oppervlakte:2.568 m²
EnergyClass:A
Renovatieplicht:Ja
Stedenbouwkundige vergunning:Ja
Voorkooprecht:Neen
Verkavelingsvergunning van toepassing:Ja
Stedenbouwkundige bestemming:Agrarisch gebied
Dagvaarding en herstelvordering:Geen rechterlijke herstelmaatregel of bestuurlijke maatregel opgelegd
Overstromingsgevoelig:Geen overstromingsgevoelig gebied
Overstromingsgebied:Niet meegedeeld
Overstromingskans perceel (P-score):C
Overstromingskans gebouw (G-score):A
Erfgoed:Geen beschermd erfgoed

Pellenberg
Molenstraat 75

Vraagprijs : € 881 500


U moet akkoord gaan met het privacybeleid van deze website
* Verplicht in te vullen
Pellenberg
Molenstraat 75

Vraagprijs : € 881 500

Pellenberg
Molenstraat 75

Vraagprijs : € 881 500